【公式】不動産の購入・賃貸情報サイト|イオンハウジング > ライオンズマンション習志野第三

ライオンズマンション習志野第三 1階

印刷する
お気に入り

1,580万円

千葉県習志野市東習志野5丁目24-5
価格
1,580万円
間取り
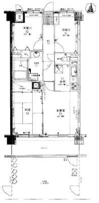
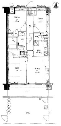
3LDK
向き
所在地
千葉県習志野市東習志野5丁目24-5
交通
  • 京成本線実籾」駅 徒歩20分
  • 京成本線八千代台」駅 徒歩23分
  • 専有面積
    59.16㎡
    築年月
    1992年 5月(築33年)
    • ※事前に必ずお問い合わせください
    • ◆ お電話受付時間 ◆
      10時~21時
      年中無休

      ◆ 内覧のご案内 ◆
      ・事前に鍵の手配、日時の調整をさせていただきます。

      ◆ お気軽にお問い合わせください ◆
      ・内覧ご希望物件以外にも、ご要望に合わせてご提案、ご案内を致します。
      ・住宅ローンのご相談
      ・購入までに必要な準備やお引渡しまでの流れ 等 

      043-272-8666

    物件の特徴

    • エレベーター

    • バストイレ別

    セールスポイント

    ■イオンハウジングの不動産仲介
    ■イオンモール幕張新都心店にて年中無休で営業中
    ■周辺環境良好

    ポイント

    南向き 2駅利用可

    担当者のコメント

    担当者画像

    お客さま担当

    イオンハウジング幕張新都心店は、年中無休10時~21時まで営業中!お気軽にお立ち寄り下さい。イオン銀行変動金利0.83%ご紹介可能、毎日のお買い物が5%OFFに!

    ■内覧ご希望物件以外にも、お客様のご要望に合わせた物件のご提案、ご案内致します。
    ■住宅ローンのご相談
    ■購入までに必要な準備やお引渡しまでの流れ
    どんなことでもお気軽にご相談ください

    基本情報

    管理費
    13,400円
    修繕積立金
    11,830円
    修繕積立基金
    -
    間取り / 詳細
    3LDK
    向き
    専有面積
    59.16㎡
    バルコニー面積
    9.86㎡
    その他面積
    -
    -
    -
    所在階 / 階建て
    1階 / 6階建
    建物構造
    鉄筋コンクリート
    築年月
    1992年 5月(築33年)
    種別
    中古マンション
    駐車場 /
    月額料金
    空無   
    土地権利
    所有権
    土地
    (敷金 / 保証金)
    - / -
    国土法届出要否
    不要
    接道状況
    -
    用途地域
    -
    地勢
    -
    都市計画
    -
    現況
    空家
    引渡し
    相談
    取引態様
    仲介
    棟総戸数
    42戸
    管理形態
    管理会社に全部委託
    管理会社
    (管理組合有無)
    大京アステージ(有)
    取引条件の
    有効期限
    2026年02月03日

    物件お問い合わせ

    必要項目の入力

    お名前

    必須

    メールアドレス

    必須

    電話番号

    任意

    内容

    任意

    確認画面へ

    利用規約免責事項個人情報保護方針を必ずお読み下さい。
    上記内容に同意いただいた場合は、確認画面へお進み下さい。

    ライオンズマンション習志野第三

    ライオンズマンション習志野第三

    1,580万円

    13,400円

    3LDK(59.16㎡)

    お気軽にお問い合わせください

    無料お問い合わせ 来店予約

    イオンモール株式会社 イオンハウジング幕張新都心店

    043-272-8666

    10:00~21:00

    年中無休