【公式】不動産の購入・賃貸情報サイト|イオンハウジング > 東村山市恩多町4丁目 中古戸建

東村山市恩多町4丁目 中古戸建

印刷する
お気に入り

2,680万円

東京都東村山市恩多町4丁目
価格
2,680万円
間取り
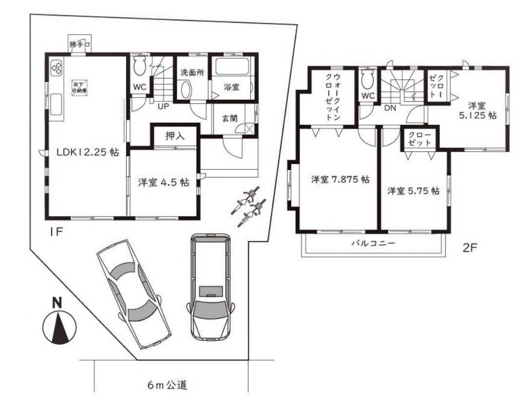
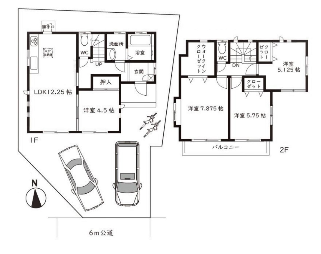
4LDK
土地面積
114.20㎡
所在地
東京都東村山市恩多町4丁目
交通
  • 西武新宿線東村山」駅 徒歩17分
  • 建物面積
    89.23㎡
    築年月
    2006年 2月(築20年)

    物件の特徴

    • TVモニタ付きインターホン

    • バストイレ別

    セールスポイント

    ■イオンハウジングの不動産仲介
    ■店舗はイオンモール東久留米の2階
    ■年中無休で営業中
    4LDK+ウォークインクローゼット+カースペース2台
    全居室南向き

    ポイント

    カースペース2台 トイレ2ヶ所 全室南向き 出窓 ウォークインクローゼット

    担当者のコメント

    担当者画像

    イオンハウジング東久留米店

    『イオンハウジング東久留米店』
    イオンハウジング東久留米店は、地域に密着した不動産仲介業者です。
    イオンモール株式会社が運営し、イオンの基本理念「すべてはお客さまのために」をこの不動産業界でも実現するため生まれました。
    当店はイオンモール東久留米の2階に位置するため、お越しの際は大型無料駐車場をご利用いただけて、お買い物ついでやお立ち寄り後はすぐにお食事もできる、今までにない住まい探しのスタイルを確立してまいります。
    従来の入りづらい不動産会社の敷居を下げ、どなたでも気軽にご相談できる環境を整えておりますので、まずは気楽にお越しください。
    ご紹介できる物件を多数揃えて、年中無休でみなさまのお越しを心よりお待ち申し上げます。

    基本情報

    販売戸数
    -
    総戸数
    1戸
    間取り / 詳細
    4LDK
    LDK 12.2帖 1室/洋室 4.5帖 1室/洋室 7.8帖 1室/洋室 5.7帖 1室/洋室 5.1帖 1室
    向き
    建物面積(坪数)
    89.23㎡(26.99坪)
    土地面積(坪数)
    114.20㎡(34.54坪)
    建ぺい率 /
    容積率
    50%/100%
    築年月
    2006年 2月(築20年)
    駐車場 /
    月額料金
    有(2台) 0円
    土地権利
    所有権
    土地
    (敷金 / 保証金)
    - / -
    建物構造
    木造 / 2階建
    傾斜地部分面積
    -
    路地状敷地
    -
    私道負担面積
    -
    セットバック
    -
    高圧線下面積
    -
    施工会社
    -
    用途地域
    第一種低層住居専用
    地目 / 地勢
    宅地 / 平坦
    接道状況
    一方(南 公道 6.0m 間口 4.0m)
    国土法届出要否
    不要
    都市計画
    市街化区域
    総区画数 /
    販売区画数
    1区画/-
    現況
    空家
    その他
    法令上の制限
    準防火地域
    取引態様
    仲介
    引渡し
    相談
    取引条件の
    有効期限
    2026年03月19日

    物件お問い合わせ

    必要項目の入力

    お名前

    必須

    メールアドレス

    必須

    電話番号

    任意

    内容

    任意

    確認画面へ

    利用規約免責事項個人情報保護方針を必ずお読み下さい。
    上記内容に同意いただいた場合は、確認画面へお進み下さい。

    東村山市恩多町4丁目 中古戸建

    東村山市恩多町4丁目 中古戸建

    2,680万円

    -

    4LDK(89.23㎡)

    お気軽にお問い合わせください

    無料お問い合わせ 来店予約

    イオンハウジング 東久留米店(運営会社:イオンモール株式会社)

    042-452-2160

    10:00~21:00

    年中無休