【公式】不動産の購入・賃貸情報サイト|イオンハウジング > 福岡市南区 サニーガーデン大橋2号棟
↓↓↓お得な情報はコチラ↓↓↓
☆☆仲介手数料 0円でご案内します☆☆
・フルサービスをお約束します!
・値下げ交渉などもお受け致します!
・スーモなどに他社が載せている新築建売も取り扱えます!
【仲介手数料の0円のメリット】
購入物件 3000万円の場合:105万6000円必要な仲介手数料が0円です!!
物件購入の諸費用を大幅に減らして、新生活を始めるための費用に充ててください!!
オープンハウス
【その他】☆大好評!新築戸建 大還元祭開催中☆ お得なお住まい探しはイオンハウジング イオンモール筑紫野店にお任せ! ご連絡頂けますと当日のご案内もさせていただきます♪
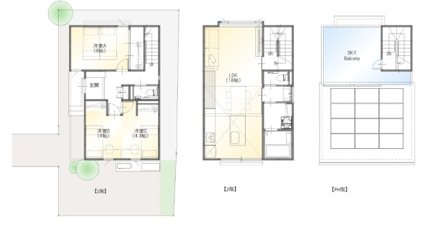
【間取り】使いやすい3LDK! LDKは広々18帖♪
※写真や図と実際の現状とが異なる場合は現状を優先させて頂きます。

0929295755
10:00~21:00 (20時以降は予約制) 定休日:なし










(※元利均等方式 金利5.00%まで ※返済年数5~50年まで入力できます)
(※ボーナスは年2回で計算しています。1000万円まで入力できます)
| 所在地 | 福岡県福岡市南区大橋4丁目79番1他 | ||
|---|---|---|---|
| 交通 | |||
| 間取り/詳細 |
3LDK/ LDK 18.0帖 1室/洋室 6.0帖 1室/洋室 4.3帖 1室/洋室 4.0帖 1室 |
建物面積(坪数) | 90.09㎡(27.25坪 |
| 価格 | 6,590万円 | ||
| 駐車場/月額料金 | 有(1台)/0円 | ||
| 土地の敷金/保証金 | -/- | 借地料/借地期間 | -/- |
| 土地権利 | 所有権 | 土地面積(坪数) | 143.05㎡(43.27坪) |
| 傾斜地部分面積 | - | 路地状敷地 | - |
| 私道負担面積/セットバック | -/済 | ||
| 地目/地勢 | 宅地/平坦 | 接道状況 | 一方(北東 公道 4.0m) |
| 建ぺい率/容積率 | 60%/160% | 用途地域 | 第一種住居/第二種住居 |
| 都市計画 | 市街化区域 | 種別/構造 | 新築一戸建/木造 |
| 階建 | 2階建 | 築年月(築年数) | 2023年 10月 (新築) |
| 総区画数/販売区画数 | 5区画/5区画 | 向き | 西 |
| 現況 | 完成済み | その他の法令上の制限 | - |
| 取引態様/引渡時期 | その他/相談 | 建築確認番号 | 第BVJ-FUK23-10-0168号 |
| 物件番号 | 92628295 | ||
| 設備条件 |
|
||
| 備考 |
☆☆☆お客様サポート☆☆☆ 1)ファイナンシャルプランナー個別相談 第三者機関のファイナンシャルプランナーが中立の立場からアドバイス。 「家を買うタイミングは?」 「賃貸とマイホームどちらがお得?」 専門家のアドバイスを聞き、将来の資金不安を解消してから、住宅探しを始められます! 2)オンライン接客・内覧 LINEを使ってのオンライン内覧対応致します! 店舗へ行くことなく、パソコンやスマートフォン上で資料や映像を見ながら営業担当者に相談することができます。 物件の見学もお任せください♪ 3)内見時サポート チャイルドシートも準備しておりますので、小さいお子様連れでの見学も可能です♪ |
||
| 取扱会社 |
|
||
※地図上に表示される物件の位置は付近住所に所在することを表すものであり、実際の物件所在地とは異なる場合がございます。