【公式】不動産の購入・賃貸情報サイト|イオンハウジング > 習志野市鷺沼台二丁目 戸建
現地案内会
【外観】【総武線『津田沼駅』徒歩圏】の好立地が魅力の注文住宅!永住の地に相応しい・・心落ち着く閑静な住宅地です。
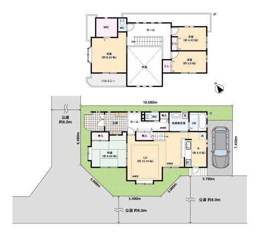
【間取り】敷地43坪超の広々とした敷地に建つ、 使い勝手を追求した注文住宅。南西、北西角地ならではの陽当りの良さと開放感。各居室に十分な収納を配した、使い勝手重視の間取りです!
※写真や図と実際の現状とが異なる場合は現状を優先させて頂きます。

047-473-6700
10:00~21:00 定休日:年中無休(年末年始を除く)










(※元利均等方式 金利5.00%まで ※返済年数5~50年まで入力できます)
(※ボーナスは年2回で計算しています。1000万円まで入力できます)
| 所在地 | 千葉県習志野市鷺沼台2丁目 | ||
|---|---|---|---|
| 交通 | |||
| 間取り/詳細 |
4LDK/ LDK 18.7帖 1室/和室 6.6帖 1室/洋室 8.3帖 1室/洋室 5.0帖 1室/洋室 4.4帖 1室 |
建物面積(坪数) | 116.27㎡(35.17坪 |
| 価格 | 4,990万円 | ||
| 駐車場/月額料金 | 有(屋根有)/- | ||
| 土地の敷金/保証金 | -/- | 借地料/借地期間 | -/- |
| 土地権利 | 所有権 | 土地面積(坪数) | 144.52㎡(43.71坪) |
| 傾斜地部分面積 | - | 路地状敷地 | - |
| 私道負担面積/セットバック | -/無 | ||
| 地目/地勢 | 宅地/平坦 | 接道状況 | 角地(南西 公道 6.0m)(北西 公道 6.0m) |
| 建ぺい率/容積率 | 70%/200% | 用途地域 | - |
| 都市計画 | 市街化調整区域 | 種別/構造 | 中古一戸建/木造 |
| 階建 | 2階建 | 築年月(築年数) | 2008年 3月 (築17年) |
| 総区画数/販売区画数 | -/- | 向き | 南西 |
| 現況 | 空家 | その他の法令上の制限 | 都市計画法第41条の制限 (第一種低層住居専用地域と同様の制限) |
| 取引態様/引渡時期 | 一般媒介/即時 | 建築確認番号 | - |
| 物件番号 | 92689308 | ||
| リフォーム |
2022年1月 給湯機交換、トイレ内クロス張替、洗面台交換 2019年5月 外壁 屋根 |
||
| 設備条件 |
|
||
| 備考 | 「習志野市鷺沼台二丁目 戸建」:習志野市エリアの新居にピッタリ。シューズボックス付きなので、ご家族みんなの靴も整頓できます。浴室乾燥機のあるお風呂場は洗濯物を干すときにも便利です。寒い冬にありがたい給湯設備がついています。イオンハウジング イオンモール津田沼店(運営会社:君津住宅)へのお問い合わせは047-473-6700又はah-tsudanuma@kimijyu.co.jpまでお願いします。 | ||
| 取扱会社 |
|
||
※地図上に表示される物件の位置は付近住所に所在することを表すものであり、実際の物件所在地とは異なる場合がございます。