【公式】不動産の購入・賃貸情報サイト|イオンハウジング
> 鳥栖市フレッシュタウン田代外町2号棟
鳥栖市フレッシュタウン田代外町2号棟
/
【外観】
- 建物面積
- 90.25㎡
- 築年月
- 2024年 8月(新築)
物件の特徴
-
カウンターキッチン
-
TVモニタ付きインターホン
-
浴室乾燥機
-
独立洗面台
-
バストイレ別
担当者のコメント
基本情報
- 販売戸数
- -
- 総戸数
- -
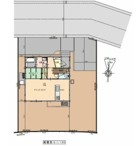
- 間取り / 詳細
- 3LDK
LDK 16.0帖 1室/その他 3.0帖 1室/洋室 6.0帖 1室/洋室 5.0帖 1室/洋室 4.5帖 1室
- 向き
- 北
- 建物面積(坪数)
- 90.25㎡(27.3坪)
- 土地面積(坪数)
- 200.01㎡(60.5坪)
- 建ぺい率 /
容積率
- 60%/200%
- 築年月
- 2024年 8月(新築)
- 駐車場 /
月額料金
- 有(2台) 0円
- 土地権利
- 所有権
- 土地
(敷金 / 保証金)
- - / -
- 建物構造
- 木造 / 2階建
- 傾斜地部分面積
- -
- 路地状敷地
- -
- 私道負担面積
-
-
- セットバック
- 無
- 高圧線下面積
- -
- 施工会社
- -
- 用途地域
- 第一種中高層住居専用
- 地目 / 地勢
- 宅地 / 平坦
- 接道状況
- 一方(北 公道 6.0m)
- 国土法届出要否
- 不要
- 都市計画
- 市街化区域
- 総区画数 /
販売区画数
- -/-
- 現況
- 完成済み
- その他
法令上の制限
- -
- 取引条件の
有効期限
- 2026年03月26日
設備条件
- 設備条件
-
- デザイナーズ / オープンハウス / ファミリー向け / フローリング / バルコニー / 公営水道 / 公共下水 / オール電化 / 24時間換気システム / 電気有 / 照明器具付き / IHクッキングヒーター / コンロ2口以上 / 食器洗い乾燥機 / システムキッチン / 対面式キッチン / コンロ3口 / バス・トイレ別 / 追焚機能浴室 / 浴室乾燥機 / 温水洗浄便座 / 洗髪洗面化粧台 / トイレ2ヶ所 / 浴室1坪以上 / 独立洗面台 / エアコン / 収納豊富 / TVモニタ付インターホン / 複層ガラス / ディンプルキー / 住戸内覧可能
- 設備(その他)
-
その他
- 物件番号
- 93429566
- 管理コード
- -
- 建築確認番号
- -
- 情報更新日
- 2026年03月12日
- 次回更新予定日
- 2026年03月26日
- 備考
- ☆☆☆お客様サポート☆☆☆
1)ファイナンシャルプランナー個別相談
第三者機関のファイナンシャルプランナーが中立の立場からアドバイス。
「家を買うタイミングは?」
「賃貸とマイホームどちらがお得?」
専門家のアドバイスを聞き、将来の資金不安を解消してから、住宅探しを始められます!
2)オンライン接客・内覧
LINEを使ってのオンライン内覧対応致します!
店舗へ行くことなく、パソコンやスマートフォン上で資料や映像を見ながら営業担当者に相談することができます。
物件の見学もお任せください♪
3)内見時サポート
チャイルドシートも準備しておりますので、小さいお子様連れでの見学も可能です♪
- 取扱会社
-
- イオンハウジング イオンモール筑紫野店(運営会社:株式会社福岡エージェンシー)
- 福岡県筑紫野市大字立明寺434-1 イオンモール筑紫野3F
- TEL:0929295755
- 福岡県知事 (1) 第20032号
情報の見方
- 所在地
-
所在地は
物件
の住所を表示。(詳細住所は表示していない場合もある)
- 交通
-
物件
に近い沿線駅・バス停。(複数駅・バス停の利用が可能な場合は最大3件まで表示)
- 間取り
-
数字は居室数を表示。LDKはそれぞれ「リビング」「ダイニング」「キッチン」、S(納戸)とは「納戸」「サービスルーム」「マルチルーム」「フリールーム」など建築基準法第28条に適合していないため、居室と認められない納戸その他の部分を表す。
- 価格
- 物件の価格を表示。
- 土地面積
- 土地の面積を表示。私道負担面積は含みません。
- 建物面積
- 建物の延べ床面積を表示。
支払いシミュレーション
- 月々の支払額
- 9.6円
- ボーナス1回
- 0円
- ボーナス
月支払総額
- 9.6円
※ボーナスは自動で年2回分で計算されます。
西村正道