【公式】不動産の購入・賃貸情報サイト|イオンハウジング > ヴェラハイツ青葉の森公園
■イオンハウジングの不動産仲介
■イオンモール幕張新都心店にて年中無休で営業中
■リフォーム物件
イベント情報










(※元利均等方式 金利5.00%まで ※返済年数5~50年まで入力できます)
(※ボーナスは年2回で計算しています。1000万円まで入力できます)
| 所在地 | 千葉県千葉市中央区末広4丁目26-6 | ||
|---|---|---|---|
| 交通 | |||
| 間取り/詳細 |
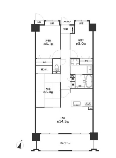
3LDK LDK 14.5帖/和室 6.0帖/洋室 5.0帖/洋室 6.1帖 |
||
| 専有面積/バルコニー面積 | 70.50㎡/10.74㎡ | ルーフバルコニー面積/テラス面積/専用庭面積 | -/-/- |
| 価格 | 2,780万円 | ||
| 管理費 | 10,000円 | ||
| 修繕積立金 | 17,530円 | 修繕積立基金 | - |
| 権利金 | - | 駐車場/月額料金 | 空無/ 管理組合 要確認 |
| 土地の敷金/保証金 | -/- | 借地料/借地期間 | -/- |
| 土地権利 | 所有権 | 国土法届出要否 | 不要 |
| 用途地域 | 第二種住居 | 地勢 | - |
| 種別/構造 | 中古マンション/鉄筋コンクリート | 向き | 南東 |
| 築年月(築年数) | 1997年 8月 (築28年) | ||
| 所在階/階建 | 4階/6階建 | 棟総戸数/販売戸数 | 52戸/- |
| 管理組合有無 | 無 | 管理形態 | 管理会社に全部委託 |
| 管理方式 | 日勤 | 管理会社 | 伊藤忠アーバンコミュニティ |
| 取引態様 | 仲介 | 現況 | 空家 |
| 引渡し | 相談 | 建築確認番号 | - |
| 物件番号 | 96118391 | ||
| リフォーム |
2025年7月 キッチン 浴室 トイレ 壁 床 ・ハウスクリーニング等 |
||
| 設備条件 |
|
||
| 取扱会社 |
|
||
※地図上に表示される物件の位置は付近住所に所在することを表すものであり、実際の物件所在地とは異なる場合がございます。