【公式】不動産の購入・賃貸情報サイト|イオンハウジング > 新座市石神第三 全1棟 1号棟
■イオンハウジングの不動産仲介
■店舗はイオンモール東久留米の2階
■年中無休で営業中
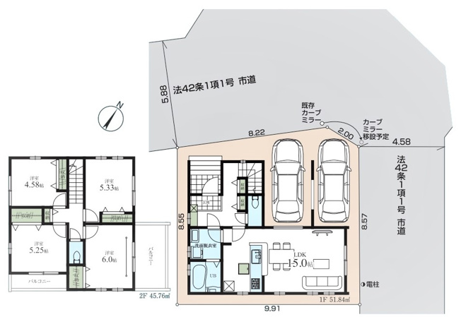
4LDK+カースペース2台
水廻りをまとめた使い勝手の良い家事動線
開放感のあるLDK











(※元利均等方式 金利5.00%まで ※返済年数5~50年まで入力できます)
(※ボーナスは年2回で計算しています。1000万円まで入力できます)
| 所在地 | 埼玉県新座市石神3丁目 | ||
|---|---|---|---|
| 交通 | |||
| 間取り/詳細 |
4LDK/ LDK 15.0帖 1室/洋室 6.0帖 1室/洋室 5.3帖 1室/洋室 5.2帖 1室/洋室 4.5帖 1室 |
建物面積(坪数) | 97.60㎡(29.52坪 |
| 価格 | 3,880万円 | ||
| 駐車場/月額料金 | 有(2台)/0円 | ||
| 土地の敷金/保証金 | -/- | 借地料/借地期間 | -/- |
| 土地権利 | 所有権 | 土地面積(坪数) | 89.84㎡(27.17坪) |
| 傾斜地部分面積 | - | 路地状敷地 | - |
| 私道負担面積/セットバック | -/- | ||
| 地目/地勢 | 宅地/- | 接道状況 | 角地(北西 公道 5.9m)(北東 公道 4.5m) |
| 建ぺい率/容積率 | 60%/200% | 用途地域 | 第一種中高層住居専用 |
| 都市計画 | 市街化区域 | 種別/構造 | 新築一戸建/木造 |
| 階建 | 2階建 | 築年月(築年数) | 2025年 12月 (予定) |
| 総区画数/販売区画数 | 1区画/- | 向き | 北東 |
| 現況 | 未完成 | その他の法令上の制限 | - |
| 取引態様/引渡時期 | 仲介/2026年1月下旬 | 建築確認番号 | 第25UDI1W建06351号 |
| 物件番号 | 98254742 | ||
| 設備条件 |
|
||
| 備考 |
*司法書士は指定となります。 *図面と現況が異なる場合は現況を優先といたします。 ~東久留米店限定~新築戸建購入キャンペーン2025年9月15日~11月14日迄~ ●正規仲介手数料から50%割引● [対象エリア]東京都練馬区、東久留米市、西東京市、清瀬市、東村山市、小平市、小金井市、埼玉県所沢市、新座市 [購入仲介手数料50%割引適用条件] キャンペーン期間中にお問合せいただいてから半年以内に不動産購入申し込みをされた場合 物件価格3,000万円(税込)以上の新築戸建が対象となります。 ※キャンペーン適用には条件があります。詳細についてはお気軽にお問合せください。 |
||
| 取扱会社 |
|
||
※地図上に表示される物件の位置は付近住所に所在することを表すものであり、実際の物件所在地とは異なる場合がございます。
新座市以外の市区町村から探す