【公式】不動産の購入・賃貸情報サイト|イオンハウジング > 千葉市美浜区磯辺一丁目 新築分譲住宅2号棟
◆イオンハウジングの不動産仲介
◆イオンモール幕張新都心店にて年中無休で営業中
◆駐車2台可能(車種によります)
◆19帖超の折り上げ天井のLDK
◆磯辺第三小学校 徒歩7分525m・磯辺中学校 徒歩12分947m
現地案内会











(※元利均等方式 金利5.00%まで ※返済年数5~50年まで入力できます)
(※ボーナスは年2回で計算しています。1000万円まで入力できます)
| 所在地 | 千葉県千葉市美浜区磯辺1丁目46-9 | ||
|---|---|---|---|
| 交通 | |||
| 間取り/詳細 |
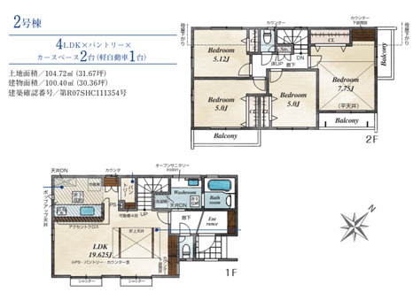
4LDK/ LDK 19.6帖 1室/洋室 7.7帖 1室/洋室 5.1帖 1室/洋室 5.0帖 2室 4LDK |
建物面積(坪数) | 100.40㎡(30.37坪 |
| 価格 | 4,680万円 | ||
| 駐車場/月額料金 | 有(2台)/- | ||
| 土地の敷金/保証金 | -/- | 借地料/借地期間 | -/- |
| 土地権利 | 所有権 | 土地面積(坪数) | 104.72㎡(31.67坪) |
| 傾斜地部分面積 | - | 路地状敷地 | - |
| 私道負担面積/セットバック | -/- | ||
| 地目/地勢 | 宅地/- | 接道状況 | 一方(北東 公道 6.0m) |
| 建ぺい率/容積率 | 50%/100% | 用途地域 | 第一種低層住居専用 |
| 都市計画 | 市街化区域 | 種別/構造 | 新築一戸建/木造 |
| 階建 | 2階建 | 築年月(築年数) | 2025年 10月 (新築) |
| 総区画数/販売区画数 | -/- | 向き | 南東 |
| 現況 | 完成済み | その他の法令上の制限 | 景観法 |
| 取引態様/引渡時期 | 仲介/相談 | 建築確認番号 | - |
| 物件番号 | 98513295 | ||
| 設備条件 |
|
||
| 備考 | こだわりポイント満載の千葉市美浜区磯辺一丁目 新築分譲住宅2号棟。新しい生活に心機一転、新築の戸建て物件はいかがでしょうか。建設住宅性能評価付なので地震保険などが優遇されやすいです。新築ならではの「新しさ」がとても魅力です。イオンモール イオンハウジング幕張新都心店では千葉市美浜区の不動産を豊富にご用意しております。お引っ越しを検討しているなら、まずはお問い合わせください。 | ||
| 取扱会社 |
|
||
※地図上に表示される物件の位置は付近住所に所在することを表すものであり、実際の物件所在地とは異なる場合がございます。