【公式】不動産の購入・賃貸情報サイト|イオンハウジング > 川口市前川1丁目 新築戸建A号棟
ベルク川口前川店まで402mです。対面式のオープンキッチンなのでご飯の支度もラクラクです。日頃から食料を貯めておく収納スペースを確保。浴室が1坪以上あるので、お風呂にもゆっくり入っていただけます。川口市より、心安らぐ暮らしが送れる戸建てをご提供致します。048-264-1221かah-kawaguchim@aeonmall.comまでご連絡下さい。











(※元利均等方式 金利5.00%まで ※返済年数5~50年まで入力できます)
(※ボーナスは年2回で計算しています。1000万円まで入力できます)
| 所在地 | 埼玉県川口市前川1丁目3-12 | ||
|---|---|---|---|
| 交通 | |||
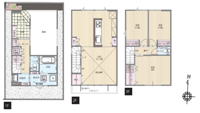
| 間取り/詳細 |
3LDK/ LDK 18.1帖 1室/洋室 6.0帖 1室/洋室 4.5帖 2室 |
建物面積(坪数) | 100.68㎡(30.45坪 |
| 価格 | 3,690万円 | ||
| 駐車場/月額料金 | 有(1台)/0円 | ||
| 土地の敷金/保証金 | -/- | 借地料/借地期間 | -/- |
| 土地権利 | 所有権 | 土地面積(坪数) | 57.56㎡(17.41坪) |
| 傾斜地部分面積 | - | 路地状敷地 | - |
| 私道負担面積/セットバック | -/無 | ||
| 地目/地勢 | 宅地/- | 接道状況 | 一方(北 公道 8.6m 間口 5.8m) |
| 建ぺい率/容積率 | 60%/200% | 用途地域 | 第一種住居 |
| 都市計画 | 市街化区域 | 種別/構造 | 新築一戸建/木造 |
| 階建 | 3階建 | 築年月(築年数) | 2025年 8月 (新築) |
| 総区画数/販売区画数 | 3区画/- | 向き | - |
| 現況 | 完成済み | その他の法令上の制限 | 景観法 |
| 取引態様/引渡時期 | 仲介/2025年9月中旬 | 建築確認番号 | 第SJK-KX245122220号 |
| 物件番号 | 99173580 | ||
| 設備条件 |
|
||
| 取扱会社 |
|
||
※地図上に表示される物件の位置は付近住所に所在することを表すものであり、実際の物件所在地とは異なる場合がございます。
川口市以外の市区町村から探す
川口市の町名から探す