【公式】不動産の購入・賃貸情報サイト|イオンハウジング
> 千葉パークハウス
千葉パークハウス
/
【間取り】
- 専有面積
- 75.22㎡
- 築年月
- 1996年 2月(築30年)
- ※事前に必ずお問い合わせください
- ◆ お電話受付時間 ◆
10時~21時
年中無休
◆ 内覧のご案内 ◆
・事前に鍵の手配、日時の調整をさせていただきます。
◆ お気軽にお問い合わせください ◆
・内覧ご希望物件以外にも、ご要望に合わせてご提案、ご案内を致します。
・住宅ローンのご相談
・購入までに必要な準備やお引渡しまでの流れ 等
043-272-8666
物件の特徴
-
オートロック
-
TVモニタ付きインターホン
-
浴室乾燥機
-
独立洗面台
-
エレベーター
-
室内洗濯機置場
-
バストイレ別
セールスポイント
■イオンハウジングの不動産
■イオンモール幕張新都心店にて年中無休で営業中
■角部屋
■新規リノベーション
担当者のコメント
基本情報
- 管理費
- 16,200円
- 修繕積立金
- 19,000円
- 修繕積立基金
- -
- 権利金
- 0万円
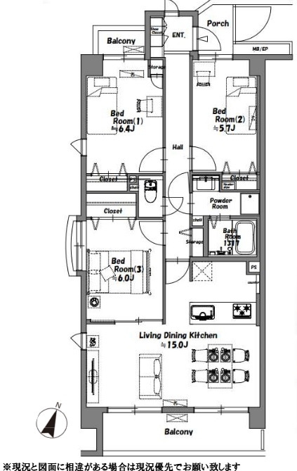
- 間取り / 詳細
- 3LDK
LDK 15.0帖 1室/洋室 6.0帖 1室/洋室 5.7帖 1室/洋室 6.4帖
- 向き
- 南東
- 専有面積
- 75.22㎡
- バルコニー面積
- 9.97㎡
- その他面積
- -
-
-
- 所在階 / 階建て
- 7階 / 8階建
- 建物構造
- 鉄筋コンクリート
- 築年月
- 1996年 2月(築30年)
- 種別
- 中古マンション
- 土地権利
- 所有権
- 土地
(敷金 / 保証金)
- - / 0万円
- 国土法届出要否
- 不要
- 接道状況
- -
- 用途地域
- 第一種住居/第二種住居
- 地勢
- -
- 都市計画
- 市街化区域
- 現況
- 空家
- 引渡し
- 相談
- 取引態様
- 仲介
- 棟総戸数
- 74戸
- 管理形態
- 管理会社に全部委託
- 管理会社
(管理組合有無)
- -(-)
- リノベーション
-
2026年2月
・システムキッチン(食器洗い乾燥機・タッチレス水栓)
・ユニットバス(浴室換気乾燥暖房機・エコアクアシャワーSPA)
・洗面化粧台(スリムLED三面鏡・シャワー付き水栓)
・トイレ(ウォシュレット一体型・お掃除リフト付)
・フローリング貼替 ・建具交換 ・クロス貼替
・ハウスクリーニング等
~共用部修繕履歴~
・2024年16月 大規模修繕工事
・2023年12月 駐車場補修工事
・2021年10月 EVリニューアル工事
- 取引条件の
有効期限
- 2026年03月18日
設備条件
- 設備条件
-
- リノベーション済 / ファミリー向け / 室内洗濯機置場 / フローリング / バルコニー / 都市ガス / 公営水道 / 公共下水 / エレベーター / 食器洗い乾燥機 / システムキッチン / バス・トイレ別 / 浴室乾燥機 / 温水洗浄便座 / 洗面台 / 独立洗面台 / インターネット対応 / オートロック / TVモニタ付インターホン / 角部屋
- 設備(その他)
-
その他
- 物件番号
- 100671501
- 管理コード
- -
- 建築確認番号
- -
- 情報更新日
- 2026年03月04日
- 次回更新予定日
- 2026年03月18日
- 備考
- 「千葉パークハウス」:千葉市中央区エリアの新居にピッタリ!TVインターホン付きなので、部屋から訪問者の顔を確認できます!住んでいて心地の良い中古マンションで魅力的です!快適な生活をお約束する角住戸で涼しく快適に生活しましょう!お客様のこれからの生活に大きく関わってくる住まい探しを、当社が誠心誠意を持ってお手伝いいたします!ぜひお客様の住まいに対するこだわりをお聞かせください(*^_^*)
- 取扱会社
-
- イオンモール株式会社 イオンハウジング幕張新都心店
- 千葉県千葉市美浜区豊砂1-1 イオンモール幕張新都心 グランドモール2階
- TEL:043-272-8666
- 国土交通大臣 (4) 第7682号
プライバシーマーク
環境ISO 14001
- (一社)全国住宅産業協会会員
(公社)首都圏不動産公正取引協議会加盟
情報の見方
- 所在地
-
所在地は
物件
の住所を表示。(詳細住所は表示していない場合もある)
- 交通
-
物件
に近い沿線駅・バス停。(複数駅・バス停の利用が可能な場合は最大3件まで表示)
- 間取り
-
数字は居室数を表示。LDKはそれぞれ「リビング」「ダイニング」「キッチン」、S(納戸)とは「納戸」「サービスルーム」「マルチルーム」「フリールーム」など建築基準法第28条に適合していないため、居室と認められない納戸その他の部分を表す。
- 価格
- 物件の価格を表示。
- 修繕積立金
- 共用部分の修繕のために積立てる金額
- 管理費
- 共同の設備その他共用部分の維持および管理をするために必要な費用のこと。
- 専有面積
- 室内の床面積を表示。
支払いシミュレーション
- 月々の支払額
- 9.6円
- ボーナス1回
- 0円
- ボーナス
月支払総額
- 9.6円
※ボーナスは自動で年2回分で計算されます。
お客さま担当