【公式】不動産の購入・賃貸情報サイト|イオンハウジング
> 新座市野寺2丁目 中古戸建
新座市野寺2丁目 中古戸建
/
【間取り】新座市野寺2丁目 中古戸建
- 価格
- 3,380万円
- 間取り
- 2LDK+1S(納戸)
- 土地面積
- 52.49㎡
- 所在地
- 埼玉県新座市野寺2丁目
- 交通
-
- 西武池袋線「ひばりヶ丘」駅 バス5分 「火の見下」 停歩4分
- 東武東上線「朝霞台」駅 バス21分 「火の見下」 停歩4分
- 建物面積
- 80.20㎡
- 築年月
- 2022年 11月(築3年)
物件の特徴
-
TVモニタ付きインターホン
-
浴室乾燥機
-
バストイレ別
セールスポイント
■イオンハウジングの不動産仲介
■店舗はイオンモール東久留米の2階
■年中無休で営業中
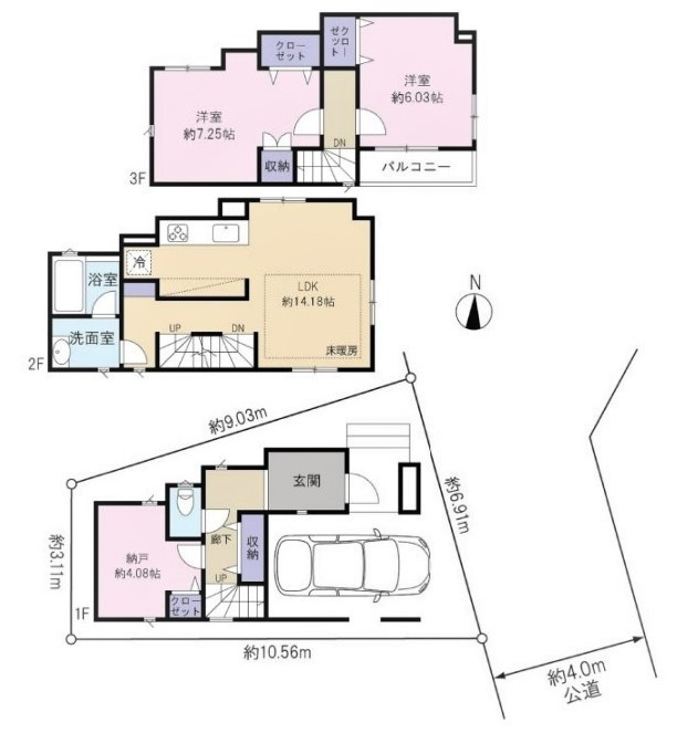
3階建て2LDK+S(納戸)+カースペース
2階リビング
2階に水廻りをまとめた使い勝手の良い洗濯動線
南西側空き地につき陽当たり良好・開放感あり
担当者のコメント
基本情報
- 販売戸数
- -
- 総戸数
- 1戸
- 間取り / 詳細
- 2LDK+1S(納戸)
S 4.0帖 1室/LDK 14.1帖 1室/洋室 7.2帖 1室/洋室 6.0帖 1室
2LDK+S(納戸)
- 向き
- 南
- 建物面積(坪数)
- 80.20㎡(24.26坪)
- 土地面積(坪数)
- 52.49㎡(15.87坪)
- 建ぺい率 /
容積率
- 60%/200%
- 築年月
- 2022年 11月(築3年)
- 駐車場 /
月額料金
- 有(1台) 0円
- 土地権利
- 所有権
- 土地
(敷金 / 保証金)
- - / -
- 建物構造
- 木造 / 3階建
- 傾斜地部分面積
- -
- 路地状敷地
- -
- 私道負担面積
-
-
- セットバック
- -
- 高圧線下面積
- -
- 施工会社
- -
- 用途地域
- 第一種中高層住居専用
- 地目 / 地勢
- 宅地 / -
- 接道状況
- 一方(北東 公道 4.0m 間口 6.9m)
- 国土法届出要否
- 不要
- 都市計画
- 市街化区域
- 総区画数 /
販売区画数
- 1区画/-
- 現況
- 居住中
- その他
法令上の制限
- -
- 取引条件の
有効期限
- 2026年03月24日
設備条件
- 設備条件
-
- 日当たり良好 / フローリング / 都市ガス / 公営水道 / 公共下水 / 電気有 / 食器洗い乾燥機 / バス・トイレ別 / 浴室乾燥機 / 温水洗浄便座 / 床暖房 / TVモニタ付インターホン / 複層ガラス
- 設備(その他)
-
その他
- 物件番号
- 102082088
- 管理コード
- -
- 建築確認番号
- -
- 情報更新日
- 2026年03月10日
- 次回更新予定日
- 2026年03月24日
- 備考
- *図面と現況が異なる場合は現況を優先といたします。
*司法書士は指定となります。
- 取扱会社
-
- イオンハウジング 東久留米店(運営会社:イオンモール株式会社)
- 東京都東久留米市南沢5丁目17番62号 イオンモール東久留米 2F
- TEL:042-452-2160
- 国土交通大臣 (4) 第7682号
プライバシーマーク
環境ISO 14001
- (一社)全国住宅産業協会会員
(公社)首都圏不動産公正取引協議会加盟
情報の見方
- 所在地
-
所在地は
物件
の住所を表示。(詳細住所は表示していない場合もある)
- 交通
-
物件
に近い沿線駅・バス停。(複数駅・バス停の利用が可能な場合は最大3件まで表示)
- 間取り
-
数字は居室数を表示。LDKはそれぞれ「リビング」「ダイニング」「キッチン」、S(納戸)とは「納戸」「サービスルーム」「マルチルーム」「フリールーム」など建築基準法第28条に適合していないため、居室と認められない納戸その他の部分を表す。
- 価格
- 物件の価格を表示。
- 土地面積
- 土地の面積を表示。私道負担面積は含みません。
- 建物面積
- 建物の延べ床面積を表示。
周辺施設

- セブンイレブン 新座石神3丁目店
約571m/8分
支払いシミュレーション
- 月々の支払額
- 9.6円
- ボーナス1回
- 0円
- ボーナス
月支払総額
- 9.6円
※ボーナスは自動で年2回分で計算されます。
イオンハウジング東久留米店