【公式】不動産の購入・賃貸情報サイト|イオンハウジング > 八幡平市平舘第8地割
019-613-2372
10:00~19:00 定休日:-










(※元利均等方式 金利5.00%まで ※返済年数5~50年まで入力できます)
(※ボーナスは年2回で計算しています。1000万円まで入力できます)
| 所在地 | 岩手県八幡平市平舘第8地割120-3・120-6 | ||
|---|---|---|---|
| 交通 | |||
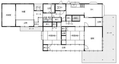
| 間取り/詳細 | 4LDK/ | 建物面積(坪数) | 185.12㎡(55.99坪 |
| 価格 | 1,200万円 | ||
| 駐車場/月額料金 | -/- | ||
| 土地の敷金/保証金 | -/- | 借地料/借地期間 | -/- |
| 土地権利 | 所有権 | 土地面積(坪数) | 1194.40㎡(361.3坪) |
| 傾斜地部分面積 | - | 路地状敷地 | - |
| 私道負担面積/セットバック | -/要 | ||
| 地目/地勢 | 宅地/- | 接道状況 | -(西 公道 7.0m)(北 公道 3.5m) |
| 建ぺい率/容積率 | -/- | 用途地域 | - |
| 都市計画 | 非線引区域 | 種別/構造 | 中古一戸建/木造 |
| 階建 | 2階建 | 築年月(築年数) | 1980年 7月 (築45年) |
| 総区画数/販売区画数 | -/- | 向き | - |
| 現況 | 居住中 | その他の法令上の制限 | 景観法・盛土規制法 |
| 取引態様/引渡時期 | 仲介/相談 | 建築確認番号 | - |
| 物件番号 | 98381957 | ||
| 設備条件 |
|
||
| 備考 |
・現況雄姿での引き渡しとなります。 ・付帯設備は現状となります。 ・買主にて点検・整備をお願いします。 ・敷地内に隣接地の方への上水道引込管がある可能性があります。 ・完了検査は未完了となります。 ・北側道路はセットバックを要します。 |
||
| 取扱会社 |
|
||
※地図上に表示される物件の位置は付近住所に所在することを表すものであり、実際の物件所在地とは異なる場合がございます。
八幡平市の町名から探す
八幡平市にある駅から探す