【公式】不動産の購入・賃貸情報サイト|イオンハウジング > 川口市仲町 中古戸建

川口市仲町 中古戸建

印刷する
お気に入り

5,280万円

埼玉県川口市仲町97-18
価格
5,280万円
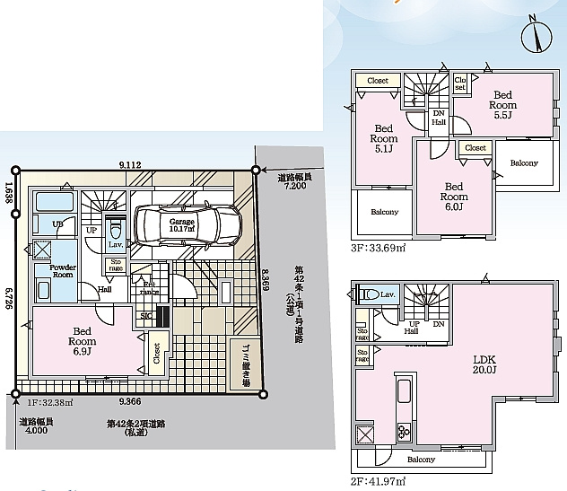
間取り
4LDK
土地面積
77.38㎡
所在地
埼玉県川口市仲町97-18
交通
  • 京浜東北線川口」駅 徒歩17分
  • 京浜東北線西川口」駅 徒歩12分
  • 建物面積
    108.04㎡
    築年月
    2020年 9月(築5年)

    セールスポイント

    通学区域内の小学校は川口市立飯仲小学校で徒歩8分です。こちらの土地は前面道路6m以上です。20帖以上も広さのあるリビングが魅力的な物件となっています。まずはイオンハウジング 川口前川店(運営会社:イオンモール)のスタッフにご希望条件をお申し付けください。条件にマッチした不動産情報をご用意いたします。

    ポイント

    床暖房 2面バルコニー 南側道路面す 角地 LDK20帖以上

    担当者のコメント

    担当者画像

    イオンハウジング川口前川店

    広々とした20帖以上のリビングダイニングのおかげで、日々の生活に余裕が生まれます。中古戸建て物件でリーズナブルかつ快適な生活を送りましょう。角地なので日当たりも良く健康的な生活に適しています。こちらの土地は前面道路6m以上です。一戸建ての情報はもちろん、地域環境も併せてご紹介いたします。京浜東北線川口付近の事なら当社にお任せ下さい。お問い合わせは、メールからでも可能です。

    基本情報

    販売戸数
    -
    総戸数
    -
    間取り / 詳細
    4LDK
    洋室 6.9帖 1室/LDK 20.0帖 1室/洋室 6.0帖 1室/洋室 5.5帖 1室/洋室 5.1帖 1室
    向き
    -
    建物面積(坪数)
    108.04㎡(32.68坪)
    土地面積(坪数)
    77.38㎡(23.4坪)
    建ぺい率 /
    容積率
    60%/200%
    築年月
    2020年 9月(築5年)
    駐車場 /
    月額料金
    有 0円
    土地権利
    所有権
    土地
    (敷金 / 保証金)
    - / -
    建物構造
    木造 / 3階建
    傾斜地部分面積
    -
    路地状敷地
    -
    私道負担面積
    120.00㎡
    セットバック
    高圧線下面積
    -
    施工会社
    -
    用途地域
    第二種住居
    地目 / 地勢
    - / -
    接道状況
    角地(東 私道 7.2m)(南 私道 4.0m)
    国土法届出要否
    不要
    都市計画
    -
    総区画数 /
    販売区画数
    -/-
    現況
    居住中
    その他
    法令上の制限
    景観地区
    取引態様
    仲介
    引渡し
    2026年2月下旬
    取引条件の
    有効期限
    2026年03月24日

    物件お問い合わせ

    必要項目の入力

    お名前

    必須

    メールアドレス

    必須

    電話番号

    任意

    内容

    任意

    確認画面へ

    利用規約免責事項個人情報保護方針を必ずお読み下さい。
    上記内容に同意いただいた場合は、確認画面へお進み下さい。

    川口市仲町 中古戸建

    川口市仲町 中古戸建

    5,280万円

    -

    4LDK(108.04㎡)

    お気軽にお問い合わせください

    無料お問い合わせ 来店予約

    イオンハウジング 川口前川店(運営会社:イオンモール株式会社)

    048-264-1221

    10:00~21:00

    無休